SAGAPONACK RESIDENCE
Sagaponack NY, USA
A quiet black shell set into an estate property in Sagaponack, NY—a historic Hamptons hamlet shaped by farmland, dunes, and a long tradition of summer retreats.
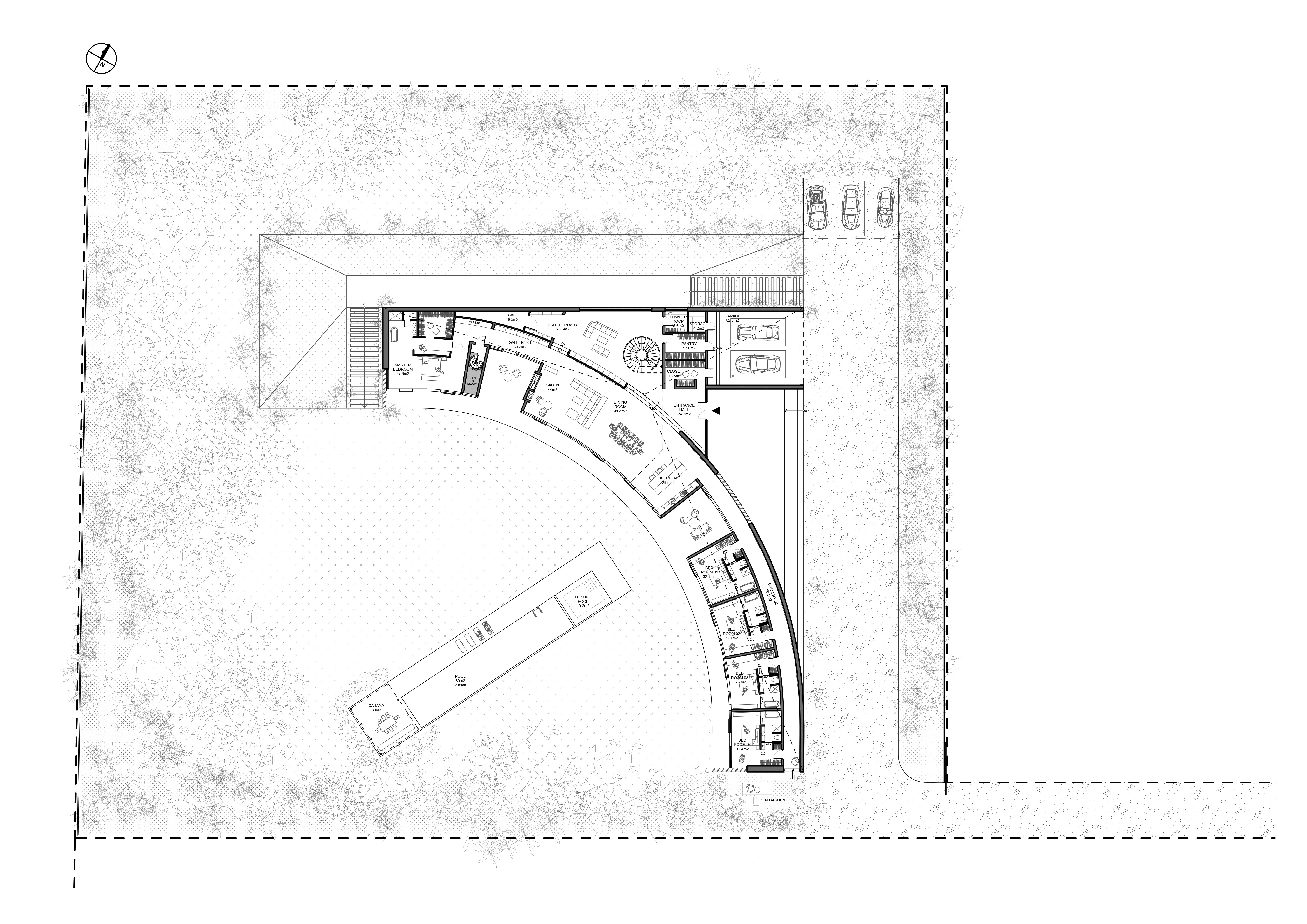
Arrival is private and restrained—an opaque north façade with a single scooping wall marking entry—then the house opens completely to the south for effortless hosting and an easy indoor/outdoor flow.
A corrugated metal skin wraps walls and roof, peeling back at the southwest corner to reveal expansive Douglas fir–framed glazing and long views to lawn and pool.
Warm Douglas fir, concrete floors with in-floor heating, and small brass accents keep the interiors calm, tactile, and quietly luminous.
A separate primary bedroom wing holds privacy for the owners, while an artist studio and suite supports gatherings for hosting artists in residence alongside family and friends.
Terraces and large glazed sliders extend every south-facing room out to the landscape and the 20m pool.
Designed for IMaestri Group UK












SAGAPONACK RESIDENCE
Sagaponack NY, USA
A quiet black shell set into an estate property in Sagaponack, NY—a historic Hamptons hamlet shaped by farmland, dunes, and a long tradition of summer retreats.
Arrival is private and restrained—an opaque north façade with a single scooping wall marking entry—then the house opens completely to the south for effortless hosting and an easy indoor/outdoor flow.
A corrugated metal skin wraps walls and roof, peeling back at the southwest corner to reveal expansive Douglas fir–framed glazing and long views to lawn and pool.
Warm Douglas fir, concrete floors with in-floor heating, and small brass accents keep the interiors calm, tactile, and quietly luminous.
A separate primary bedroom wing holds privacy for the owners, while an artist studio and suite supports gatherings for hosting artists in residence alongside family and friends.
Terraces and large glazed sliders extend every south-facing room out to the landscape and the 20m pool.
Designed for IMaestri Group UK












SAGAPONACK RESIDENCE
Sagaponack NY, USA
A quiet black shell set into an estate property in Sagaponack, NY—a historic Hamptons hamlet shaped by farmland, dunes, and a long tradition of summer retreats.
Arrival is private and restrained—an opaque north façade with a single scooping wall marking entry—then the house opens completely to the south for effortless hosting and an easy indoor/outdoor flow.
A corrugated metal skin wraps walls and roof, peeling back at the southwest corner to reveal expansive Douglas fir–framed glazing and long views to lawn and pool.
Warm Douglas fir, concrete floors with in-floor heating, and small brass accents keep the interiors calm, tactile, and quietly luminous.
A separate primary bedroom wing holds privacy for the owners, while an artist studio and suite supports gatherings for hosting artists in residence alongside family and friends.
Terraces and large glazed sliders extend every south-facing room out to the landscape and the 20m pool.
Designed for IMaestri Group UK











