RAFFLES HOTEL RESTAURANT
Warsaw
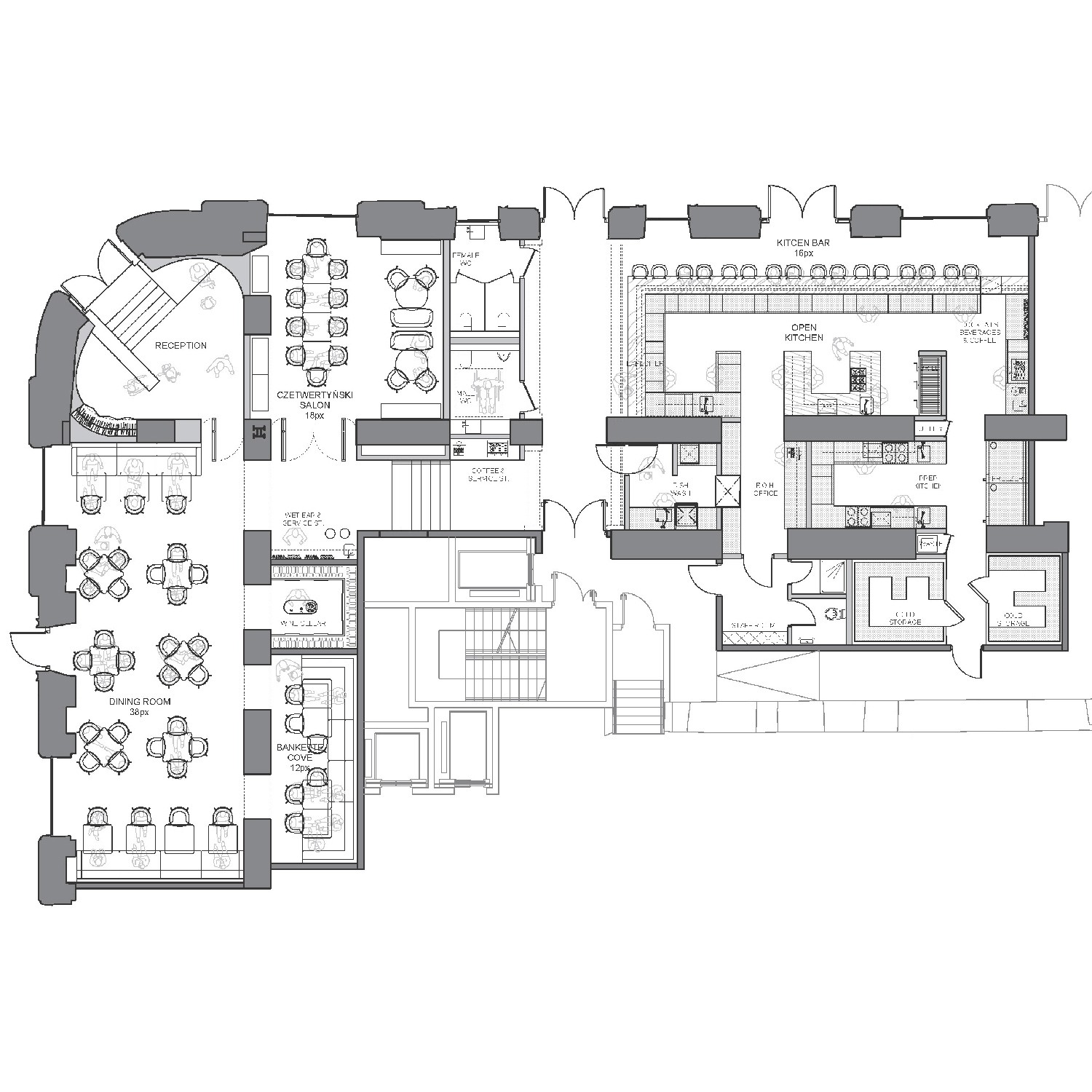
A restaurant concept for Raffles Hotel Europejski in Warsaw—an icon rebuilt after WWII and carried forward into contemporary city life, directly across from the Presidential Palace.
The redesign brings intimacy and drama, with improved acoustics and a clear sense of occasion, while strengthening the hotel restaurant’s identity through material and craft.
A ceiling pattern formed from Oskar Zięta’s inflatable stainless-steel mirrors reimagines ornamental moulding in a distinctly modern way—light-catching, precise, and quietly theatrical.
Where possible, original walls and arches remain intact, letting history hold the room while new elements do the work.
Jacquard wallpaper, stone, and brass fixtures add warmth and depth, supported by lighting that shifts with time of day and occasion.
A 24-hour bar-dining zone connects directly to the street, keeping the restaurant active and accessible around the clock.
Invited competition finalist.


RAFFLES HOTEL RESTAURANT
Warsaw
A restaurant concept for Raffles Hotel Europejski in Warsaw—an icon rebuilt after WWII and carried forward into contemporary city life, directly across from the Presidential Palace.
The redesign brings intimacy and drama, with improved acoustics and a clear sense of occasion, while strengthening the hotel restaurant’s identity through material and craft.
A ceiling pattern formed from Oskar Zięta’s inflatable stainless-steel mirrors reimagines ornamental moulding in a distinctly modern way—light-catching, precise, and quietly theatrical.
Where possible, original walls and arches remain intact, letting history hold the room while new elements do the work.
Jacquard wallpaper, stone, and brass fixtures add warmth and depth, supported by lighting that shifts with time of day and occasion.
A 24-hour bar-dining zone connects directly to the street, keeping the restaurant active and accessible around the clock.
Invited competition finalist.


RAFFLES HOTEL RESTAURANT
Warsaw
A restaurant concept for Raffles Hotel Europejski in Warsaw—an icon rebuilt after WWII and carried forward into contemporary city life, directly across from the Presidential Palace.
The redesign brings intimacy and drama, with improved acoustics and a clear sense of occasion, while strengthening the hotel restaurant’s identity through material and craft.
A ceiling pattern formed from Oskar Zięta’s inflatable stainless-steel mirrors reimagines ornamental moulding in a distinctly modern way—light-catching, precise, and quietly theatrical.
Where possible, original walls and arches remain intact, letting history hold the room while new elements do the work.
Jacquard wallpaper, stone, and brass fixtures add warmth and depth, supported by lighting that shifts with time of day and occasion.
A 24-hour bar-dining zone connects directly to the street, keeping the restaurant active and accessible around the clock.
Invited competition finalist.

