KONSTANTINE RESIDENCE
Konstancin, Poland
A private villa for an Op Art collector in Konstancin-Jeziorna, near Warsaw—an historic spa town known for its legacy of villas and forested estates.
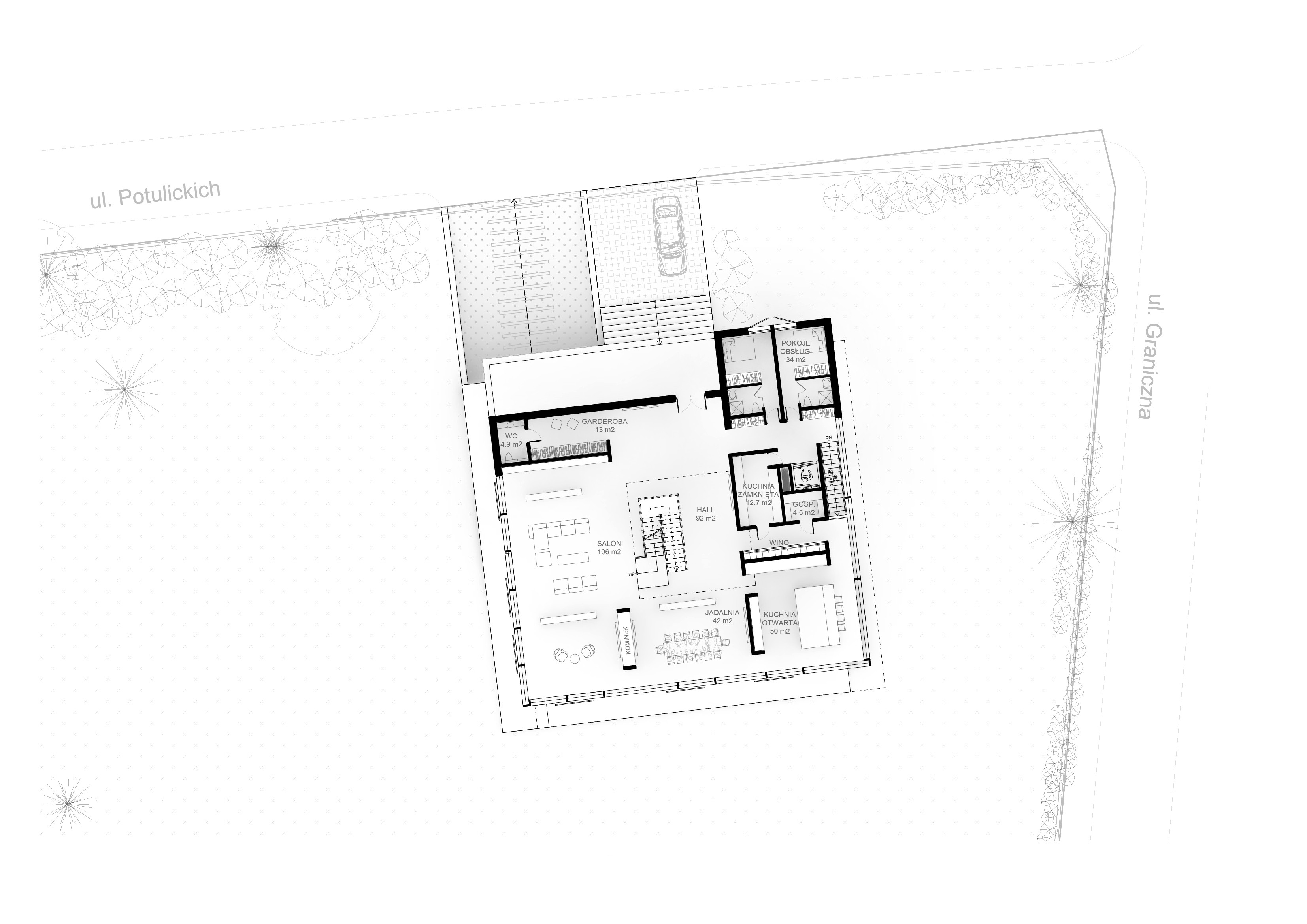
Organized on a Palladian nine-square grid, the plan gives the family calm order for daily rituals and effortless entertaining, while keeping privacy from the street.
A central courtyard rises through all three floors and is capped with a large skylight, drawing daylight deep into the home and turning circulation into a lived-in gallery.
Art is woven into the architecture through built-in moments for sculpture and display—present and personal, never sterile.
The exterior is both restrained and dynamic: floors shift subtly in elevation, and brass panels with brass-framed glazing catch changing light.
North remains quiet and opaque on arrival; the south opens to terraces, framed views, and a covered upper terrace facing the estate landscape, with discreet staff quarters integrated.
Designed for IMaestri Group UK











KONSTANTINE RESIDENCE
Konstancin, Poland
A private villa for an Op Art collector in Konstancin-Jeziorna, near Warsaw—an historic spa town known for its legacy of villas and forested estates.
Organized on a Palladian nine-square grid, the plan gives the family calm order for daily rituals and effortless entertaining, while keeping privacy from the street.
A central courtyard rises through all three floors and is capped with a large skylight, drawing daylight deep into the home and turning circulation into a lived-in gallery.
Art is woven into the architecture through built-in moments for sculpture and display—present and personal, never sterile.
The exterior is both restrained and dynamic: floors shift subtly in elevation, and brass panels with brass-framed glazing catch changing light.
North remains quiet and opaque on arrival; the south opens to terraces, framed views, and a covered upper terrace facing the estate landscape, with discreet staff quarters integrated.
Designed for IMaestri Group UK











KONSTANTINE RESIDENCE
Konstancin, Poland
A private villa for an Op Art collector in Konstancin-Jeziorna, near Warsaw—an historic spa town known for its legacy of villas and forested estates.
Organized on a Palladian nine-square grid, the plan gives the family calm order for daily rituals and effortless entertaining, while keeping privacy from the street.
A central courtyard rises through all three floors and is capped with a large skylight, drawing daylight deep into the home and turning circulation into a lived-in gallery.
Art is woven into the architecture through built-in moments for sculpture and display—present and personal, never sterile.
The exterior is both restrained and dynamic: floors shift subtly in elevation, and brass panels with brass-framed glazing catch changing light.
North remains quiet and opaque on arrival; the south opens to terraces, framed views, and a covered upper terrace facing the estate landscape, with discreet staff quarters integrated.
Designed for IMaestri Group UK










